Eckdaten
- Art Doppelhaushälfte
- Lage 25813 Husum
- Kaufpreis 148.000,00 €
- Wohnfläche ca. 90 m²
- Grundstück ca. 344 m²
- Zimmer 4
- Baujahr 1910
- Etagenzahl 1
- Denkmalschutzobjekt nein
- Einbauküche ja
- Stellplatztyp Garage
- Garagenanzahl 1
- Vermietet nein
- Bezugstermin nach Vereinbarung
- Bodenbelag Fliesen Laminat
- Ausstattung des Bades Dusche
- Zustand Renovierungsbedürftig
- Immobilien-ID 124625954
- Provision 3,57 inkl. MwSt.
Geschäftsführer
Immobilie
Diese um 1910 erbaute Doppelhaushälfte vereint den besonderen Charme der Bauzeit mit zahlreichen Möglichkeiten zur individuellen Gestaltung. Auf einer Wohn- und Nutzfläche von rund 90 m² und einem Grundstück von ca. 344 m² bietet die Immobilie eine solide Basis für alle, die ein Zuhause nach ihren eigenen Vorstellungen schaffen möchten.
Das Haus verfügt über ein charakteristisches Krüppelwalmdach mit Pfanneneindeckung, verklinkerte Außenwände sowie eine Holzzwischendecke und ist mit doppelt verglasten Kunststofffenstern mit innenliegenden Sprossen ausgestattet.
Beheizt wird es über eine Gasheizung mit Warmwasserspeicher, ergänzt durch einen gemütlichen Ofen.
Komfortable Details wie teilweise elektrische Rollläden, eine Terrasse mit Markise, ein Wintergarten und ein kleiner Garten mit Baumbestand sorgen für zusätzlichen Wohnwert.
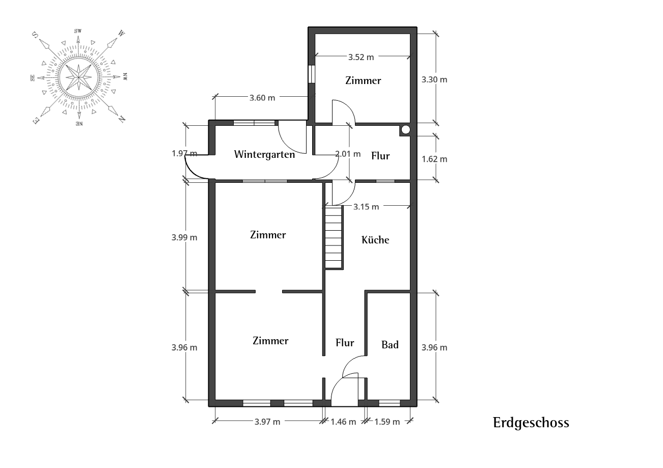
Im Erdgeschoss befinden sich ein Flur, ein Wohnzimmer, zwei weitere Zimmer, ein Badezimmer, eine Küche sowie ein zusätzlicher Flur mit Zugang zum Wintergarten. Das Dachgeschoss bietet neben einem Flur 2,5 weitere Zimmer, die flexibel nutzbar sind.
Die Doppelhaushälfte ist renovierungsbedürftig, eröffnet aber genau dadurch vielfältige Chancen, klassische Altbauelemente mit modernen Wohnwünschen zu verbinden und ein individuelles, behagliches Zuhause zu gestalten.
Lage
Leben und Wohnen in Husum – der charmanten Hafenstadt an der Nordsee
Die Kreisstadt Husum, auch liebevoll „Die graue Stadt am Meer“ genannt, besticht durch ihre einzigartige Lage direkt an der Nordsee. Mit rund 23.000 Einwohnern bietet Husum eine ideale Kombination aus städtischem Leben und nordfriesischer Gelassenheit.
Die malerische Altstadt mit ihren historischen Gassen, kleinen Boutiquen und gemütlichen Cafés lädt zum Bummeln und Verweilen ein. Bekannt ist Husum außerdem für seinen Binnenhafen, der nicht nur maritimes Flair versprüht, sondern auch das Herz der Stadt bildet.
Neben zahlreichen Einkaufsmöglichkeiten und einer hervorragenden Infrastruktur bietet Husum ein breites Bildungs- und Kulturangebot. Theater, Museen und die jährlich stattfindende Krokusblüte im Schlosspark ziehen Besucher aus nah und fern an.
Auch für Freizeit- und Naturliebhaber hat Husum viel zu bieten: Ob Wattwanderungen, Radtouren entlang der Nordseeküste oder Ausflüge zu den nahegelegenen Inseln und Halligen – die Region hält unzählige Möglichkeiten bereit.
Dank guter Verkehrsanbindungen mit Bahn, Bus und dem direkten Anschluss an die Bundesstraßen erreichen Sie sowohl die Nordseeinseln als auch größere Städte wie Flensburg oder Kiel schnell und unkompliziert.
Husum verbindet auf besondere Weise maritimes Lebensgefühl, kulturelle Vielfalt und die Nähe zur Natur – ein idealer Ort zum Leben und Wohlfühlen.
Ausstattung
Doppelhaushälfte
Baujahr ca. 1910
ca. 90 m² Wohn- und Nutzfläche
ca. 344 m² Grundstücksfläche
Krüppelwalmdach mit Pfanneneindeckung
ausgebautes Dachgeschoss
verklinkerte Außenwände
Holzzwischendecke
doppeltverglaste Kunststofffenster mit innenliegenden Sprossen
Gasheizung mit Warmwasserspeicher
3‑adrige Elektrik
Ofen
teilweise elektrische Rollläden
Terrasse
Markise
kleiner Garten mit Baumbestand
Wintergarten
Raumaufteilung
Erdgeschoss: Flur, Wohnzimmer, 2 Zimmer, Badezimmer, Küche, Flur mit Zugang zum Wintergarten
Dachgeschoss: Flur, 2,5 Zimmer
Renovierungs- und sanierungsbedürftig
Sonstiges
Dieses Exposé wurde mit größter Sorgfalt und nach bestem Wissen erstellt. Sämtliche Informationen stammen vom Auftraggeber. Für die Vollständigkeit und Richtigkeit der Angaben übernehmen wir keine Gewähr. Irrtümer sowie ein Zwischenverkauf bleiben vorbehalten
Herzlichen Dank für Ihre Anfrage.
Wir werden diese so schnell wie möglich bearbeiten.

